ChatsApp

Descripción

- INMOBILIARIA MONYMAR -

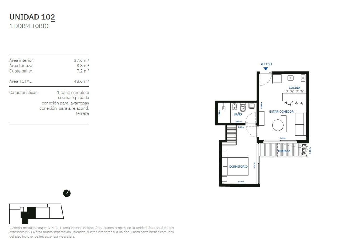
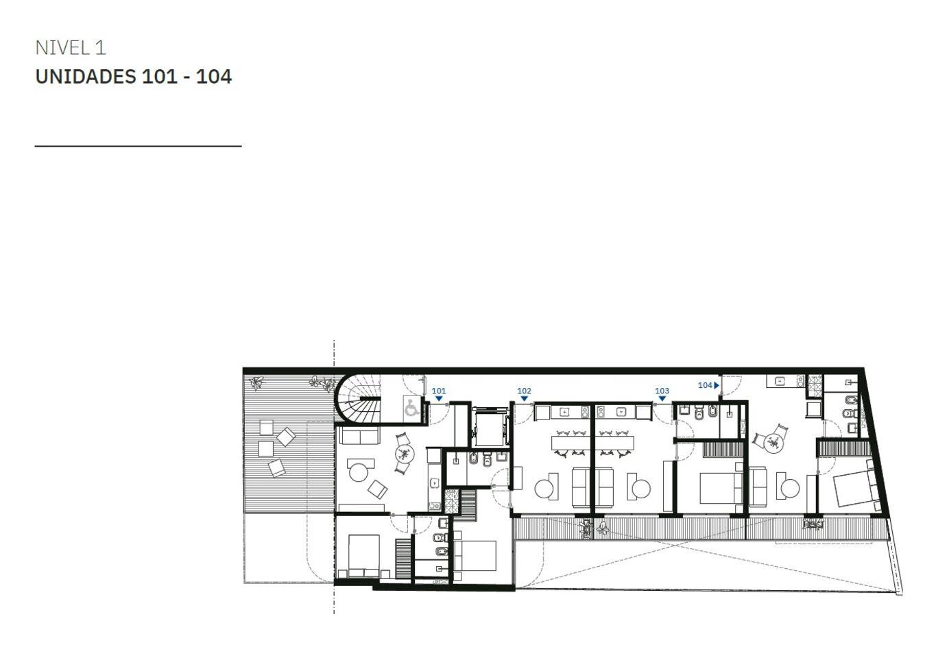
JAIME CIBILS Y 8 DE OCTUBRE... EDIFICIO VIT... UBICACIÓN CON VARIEDAD DE SERVICIOS, HOSPITALES, CENTROS EDUCATIVOS, ESTADIO, PARQUE BATLLE, Y A METROS DE LA MUY CONCURRIDA AVENIDA 8 DE OCTUBRE... A ESTRENAR FEBRERO 2027... AL FRENTE... Living comedor con cocina integrada con placares aéreos y bajo mesada, horno empotrado, anafe y campana, salida a TERRAZA de 3,8m2 aproximadamente, 1 DORMITORIO, 1 BAÑO completo. Previsión para aire acondicionado y conexión para lavarropas. El edificio cuenta con BARBACOA CON PARRILLERO, SOLÁRIUM. Garaje Opcional.

PRECIO DE VENTA:
115.000 + GARAJE OPCIONAL U$S 21.000+ 4% GASTOS DE OCUPACIÓN.

EDIFICIO AMPARADO POR LA LEY 18795 DE LA AGENCIA NACIONAL DE VIVIENDA Y CON TODOS LOS BENEFICIOS PARA LOS COMPRADORES OTORGADOS POR DICHA LEY:
1) Exoneración del IVA del precio de compra;
2) Exoneración del pago de ITP (2% sobre valor de catastro),
3) Exoneración del impuesto al patrimonio por 10 años,
4) Exoneración del impuesto a la renta (IRPF O IRAE) por 10 años.

METRAJE:
37,6m2 área propia + 7,2m2 área común + 3,8m2 terraza = 48,6m2 totales.

CONSULTE POR FINANCIACIÓN.

CONSULTE POR OTRAS UNIDADES DISPONIBLES.

(AP 6438)

Características de la propiedad

  • Habitaciones1 Habitación
  • BañosBaños: 1
  • SuperficieSuperficie: 48,60 m²
  • Superficie ConstruidaSuperficie Construida: 37,60 m²
  • Superficie BalconesSuperficie Balcones: 3.8m²
  • ParrilleroParrillero
  • CalefacciónCalefacción: Prevision aire acondicionado
  • DisposiciónDisposición: Frente
  • Propiedad HorizontalPropiedad Horizontal
  • PisoPiso: 1
  • Año de ConstrucciónAño de Construcción: 2026
  • AscensorAscensor
  • Estado: - En construcción
  • Vivienda Social: Si
  • Conexiones: 4 %
  • Garaje opcional: U$S 21.000
  • Disposición: Frente
  • Ascensor: Si
  • Calefacción: Si, Prevision aire acondicionado
  • Parrillero: Si
  • Piso: 1
  • Propiedad horizontal: Si
  • Año de construcción: 2026
  • Superficie terrazas: 3.8 m2
  • Superficie construida: 37.6 m2

Contactate con nosotros

captcha

¿Quiénes somos?

Somos una empresa familiar en constante crecimiento y siempre apostando a la excelencia en la prestación de servicios inmobiliarios, no solo en la compraventa y alquiler de casas y apartamentos, sino que nos hemos especializado y somos líderes en venta y alquiler de locales y terrenos para industria, logística o depósito.